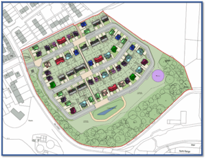
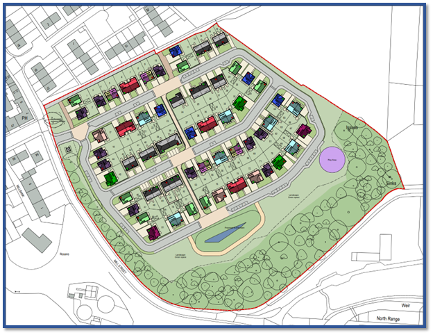
Mill Street, Stanley



SITE LOCATION: Mill Street, Stanley
LOCAL AUTHORITY: Perth & Kinross
GENERAL DESCRIPTION: New Development of 22 mix tenure homes, comprising 17 social rent and 5 shared equity family homes. These new homes will achieve an A rated energy rating and will be fitted with zero carbon emissions air source heat pumps and solar photovoltaic panels, to help reduce residents energy use.
Stanley 2B-4P House End J0122(24H-E-G)-901 Sales
Stanley 2B-4P House Mid J0122(24H-M-G)-901
Sales Stanley 3B-5P House End J0122(35H-E-G)-901 Sales
| HOUSING TYPE |
TENURE |
NO. OF DOUBLE BEDROOMS |
NO. OF SINGLE BEDROOMS |
QUANTITY |
| 6 PERSON HOUSE |
Social Rent |
2 |
2 |
2 |
| 5 PERSON HOUSE |
Social Rent |
2 |
1 |
2 |
| 4 PERSON HOUSE |
Social Rent |
2 |
0 |
11 |
| 4 PERSON (WHEELCHAIR ACCESSIBLE) HOUSE |
Social Rent |
2 |
0 |
2 |
| SHARED EQUITY HOMES |
TENURE |
NO. OF DOUBLE BEDROOMS |
NO. OF SINGLE BEDROOMS |
QUANTITY |
AVAILABILITY |
| 5 PERSON HOUSE |
Shared Equity |
2 |
1 |
2 |
2 |
| 4 PERSON HOUSE |
Shared Equity |
2 |
0 |
3 |
3 |
START DATE: March 2025
COMPLETION DATE: July 2027
CONTRACTOR: Ogilvie Homes Ltd.